型號及含義

| 型號 | 配件名稱 | 名稱 | 型號規格 | 數量 |
| HR-L-K2001 | 總進線 | 斷路器 | NM1-225S/3300 | 1 |
| 出線 | 隔離開關 | NH2-100/2 | 20 |
| 進線 | 斷路器 | DZ47-60/2 | 20 |
| HR-L-K2002 | 總進線 | 斷路器 | NM1-225S/3300 | 1 |
| 出線 | 接線端子 | 三進十六出 一進十六出 | 1 1 |
| 進線 | 斷路器 | DZ47-60/2 | 20 |
| HR-L-K2003 | 總進線 | 斷路器 | NM1-100H/3300 | 1 |
| 出線 | 斷路器 | DZ47-60/2 | 20 |
| 進線 | 斷路器 | DZ47-60/2 | 20 |
注: 總開關連接線BV16mm2或BV25mm2電能表連接線BV6mm2或BV10mm2。
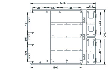
外形及安裝尺寸(mm)

單相二十位電表箱(插卡)接線圖

訂貨須知
1、此方案內參數為本公司提供的標準配置,如果客戶無明確要求,公司將按標準配置供貨。超出此方案要求的,請另行說明。
2、左側進線室、出線室的上蓋可選全透明的PC材質或非透明的ABS材質, i青按實際確定選型方案。